全國服務電話:
18330826666
銷售專線:0318--7021337
QQ:1433386638
郵箱:1433386638@qq.com
地 址:河北省安平縣城東開發區
道路聲屏障原理:道路聲屏障可將高噪聲設備圍隔,做到鬧靜分開,隔聲效果好,外形美觀、堅固耐用、安裝方便、光景效果與環境協調,適用于交通噪聲、工地施工噪聲及大型工業設備的噪聲。可根據用戶的需要進行特殊規格設計加工。
道路聲屏障主要特點:
1、隔聲量大:平均隔聲量35dB。
2、吸聲系數高:平均吸聲系數0.84。
3、耐候耐久性:產品具有耐水性、耐熱性、抗紫外性、不會因雨水溫度變化引起降低性能或品質異常。
道路聲屏障采用鋁合金板、鍍鋅板、鋁板、H鋼立柱表面鍍鋅噴塑處理防腐年限在15年以上。
|
|
聲屏障是指在聲源與接受者之間,插入一個有足夠面密度的板或墻,使聲波有一個顯著的附加衰減量,從而減弱接收者所在的一定區域內的噪聲影響,這種設施就是聲屏障。聲波在空氣中傳播,碰到聲屏障時將產生反射、透射和衍射等現象。
聲屏障的作用是阻止直達聲的傳播,隔離透射聲,并使衍射聲有足夠的衰減,使聲屏障后面形成的“聲影區”內的噪聲有明顯的下降,最終達到降低噪聲的目的。
噪聲在傳播過程中遇到障礙物時,若障礙物的尺寸遠大于聲波波長,大部分聲能被反射,一部分發生衍射,而透射聲的影響可以忽略不計。通常,聲屏障的隔聲效果可以采用減噪量來表示。
在聲源S和接收點R之間插入一個聲屏障,設聲屏障無限長,其后形成一個聲影區。聲影區的減噪量與噪聲波長、聲源和接收點之間的距離等因素有關,引入參量菲涅耳數N,估算隔聲屏障的減噪量:
N=2δ/λ ;δ=(α+b)-(r+d)
δ為有屏障和無屏障時聲源到接收點之間的最短距離之差;λ為聲波波長。
在半自由聲場(如室外開闊地)中,聲屏障的減噪量RN與N的關系表:
| N | -0.1 | -0.01 | 0 | 0.1 | 0.5 | 1 | 2 | 3 | 5 |
| RN/dB | 2 | 4 | 5 | 7 | 11 | 13 | 16 | 17 | 21 |
當N為正值時,用波的衍射理論和邊緣的近場修正,可以得到聲屏障的減噪量近似計算公式:

由上式可知,當N趨近于0時,RN近似于5dB,也就是說,當屏障的高度接近聲源和接收點的高度時,還有5dB的減噪量。
N為負值時,表示屏障未遮擋聲源和接收點之間的直達聲,這時最大降噪效果為5分貝。N值增加,降噪量隨之增加,但實測最大降噪量為24分貝。所使用的屏障材料,應使各頻率隔聲量比無限長屏障的隔聲量高6分貝以上。
如果聲源和接收者都在地平面上,聲源和屏障之間的距離為r,接收者和屏障之間的距離為d,屏障的高度為h,并且滿足d>=r>=h,則屏障的降噪量為:

對于點聲源,屏寬比屏高大出5倍以上,就可近似作為無限長屏障處理。
在室內(相當于半混響聲場),屏障的減噪量與聲源的性質以及室內的房間常數等因素有關。對于混響聲場,并且接受點在聲源的遠場范圍內的情況,聲屏障沒有減噪效果。因此,如果在室內設置聲屏障,應要求室內具有較高的聲吸收,減小室內混響,從而使聲屏障獲得較好的減噪效果。
室外的聲屏障一般采用磚或混凝土結構,室內的聲屏障可用鋼板、木板、塑料板或石膏板等結構,板式聲屏障可用0.5-1.0mm厚的鋼板附加阻尼層和吸聲層構成;簾幕式隔聲屏障可用人造革護面中間附加柔軟纖維材料構成。
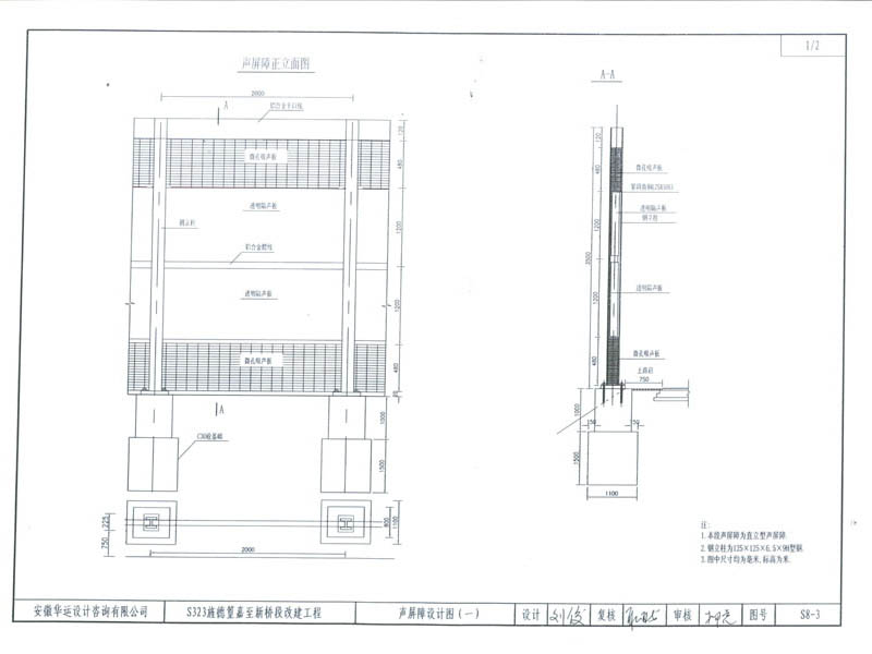
道路聲屏障一般由以下幾部分組成:基礎、立柱、屏障板、固定件、密封件,有的包括頂部結構。
道路聲屏障立柱和屏障板是聲屏障主要的組成部件。
立柱的作用是保證聲屏障板安裝及形成屏障墻體的主要支撐結構。
屏障板分為吸聲型屏障板和反型屏障板,都是阻隔直達聲的主要部件。
頂部結構設計的目的一般是使從屏障頂部繞射的衍射聲得到有效衰減。
一平方道路聲屏障的價格是多少在這個問題上,什么是道路聲屏障?
道路聲屏障是一種在聲音源和接收器之間用于阻斷聲波傳播的設施,從而減少了接收者區域中噪聲的影響根據立交橋聲屏障的應用環境。
聲屏障可分為三類:交通噪聲屏障、設備噪聲衰減噪聲屏障和工業工廠噪聲屏障。目前市場聲屏障的類型很多,如金屬隔聲屏障、混凝土隔聲屏障、PC聲屏障、FRP隔聲屏障等。
首先,你需要知道有多少數量,如總長度是多長,以及它是多高。這些基本參數,如果有設計圖紙,然后直接向報價人員。對報價人員的圖紙進行了詳細的比較,給出了正確的價格。
道路聲屏障的價格與每平方米一個區域的價格相差不大。一旦存在一定的價格偏差,買方就有必要在正常區域內準確報價,對于今天的市場來說,3M垂直道路聲屏障的價格約為600元/m2(注:每個工程圖紙都有一定區別,如果您有圖紙或詳細規格,可以聯系我們按照圖紙規格進行)。
國內生產道路聲屏障的廠家比較多,價格也有很大的差異
每個工程的圖紙也有一些區別,價格也會存在差異,如果您有圖紙可以聯系我們的銷售經理:趙經理:18731816636 我們根據您的需求出一份詳細的報價單。
道路聲屏障材料選用總的原則是降噪效果性能良好、結構安全可靠、材料價格經濟、安裝成本低、經久耐用、使用壽命長、景觀協調、美觀大方等方面。具體說明如下:
(1)隔聲量大:平均隔聲量應不小于35dB;
(2)吸聲系數高:平均吸聲系數應不小于0.84;
(3)耐侯耐久性:產品應具有耐水性、耐熱性、抗紫外線、不會因雨水溫度變化引起降低性能或品質異常。產品采用鋁合金卷板、鍍鋅卷板、玻璃棉、H鋼立柱表面鍍鋅外理防腐年限在15年以上。
(4)美觀:可選擇多種色彩和造型進行組合,與周圍環境協調,形成亮麗風景線。
(5)經濟:裝配式施工,提高工作效率,縮短施工時間,可節省施工費及人工費。
(6)方便:與其它制品并行安裝,易維修,更新方便。
(7)輕便:吸音板系列產品具有自重輕特點,可減輕高架輕軌、高架路的承重負荷,可降低結構造價。
(8)防火:采用超細玻璃棉,由于其熔點高,不可燃,完全滿足環保和防火規范的要求。
(9)高強度:結合我國各地區不同的氣候條件,在結構設計時充分考虛風荷載。通過生產線壓制凹槽增加強度。
(10)防水、防塵:材料設計時充分考慮防水、防塵,在揚塵或淋雨環境中其吸聲性能不受影響,構造中已設置排塵排水措施,避免構件內部積水。微穿孔共振空腔吸聲在淋雨環境中吸聲性能不受影響,針對中低頻降噪特別明顯。
(11)耐用:產品設計已充分地考慮了道路的風載、交通車輛的撞擊安全和全氣假的露天防腐。產品采用鋁合金卷板、鍍鋅卷板、玻璃棉、H鋼立柱表面鍍鋅處理。在質保期內不腐蝕、不變型、吸聲、隔聲效果不降低。
1、修筑于路基上的道路聲屏障基礎應與路基同步修建,不得因其施工而損壞、影響路基的穩固與安全。道路聲屏障的基礎施工宜在路基本體成型后、軌道鋪設及電纜槽施工前;施工前應查清路基上各類管線的位置;依據道路聲屏障基礎尺寸及其在路肩的位置切割開槽,切割開槽時嚴禁破壞各類管線。
2、道路聲屏障基礎應按設計要求位置、形狀尺寸、深度施工,基礎開挖不得破壞基床表面。
3、道路聲屏障基礎埋設錨桿、錨孔注漿施工所用材料、施工方法應符合設計要求,不得影響路基安全穩定。
4、道路聲屏障基礎應按設計要求施工伸縮縫。道路聲屏障基礎每20m~30m長設置一個伸縮縫。施工中應結合現場地形確定具體伸縮縫位置。
5、道路聲屏障基礎應按設計要求預埋排水管,排水出口不得沖刷路基;與無砟軌道線間集水井排水管交叉處基礎混凝土施工不得破壞排水管。基礎頂端每2m預埋ø100mmL形PVC管,以排放道路聲屏障內側路肩面的雨水;基礎中部變截面處每4m按2%坡度預埋ø75mm直形PVC管,以排出路基本體滲水和電纜槽泄水;無砟軌道線路路基線間集水井的連接排水管可澆筑在基礎中。路基道路聲屏障應設排水設施,外側排水出口應避免對路基邊坡產生沖刷,并防止漏聲。
6、道路聲屏障基礎全部用混凝土灌注密實后,其表面應與路基表面銜接平順。
7、道路聲屏障基礎混凝土強度的檢驗應符合本標準第11.2.18條的規定。
8、道路聲屏障基礎與電纜槽、接觸網支柱之間、與路肩面的縫隙等均應按設計要求施做防水層。基礎與電纜槽、接觸網支柱之間、與路肩面的縫隙等均應用瀝青混凝土做防水層。
9、道路聲屏障基礎距線路中心線位置、截面尺寸、埋置深度的允許偏差、檢驗數量及檢驗方法應符合表13.4.9的規定。
表道路聲屏障基礎距線路中心線位置、截面尺寸、埋置深度的允許偏差、檢驗數量及檢驗方法
序號 |
檢驗項目 |
允許偏差 |
施工單位檢驗數量 |
檢驗方法 |
1 |
距線路中心線位置 |
0,+20mm |
按聲屏障基礎數量抽樣檢驗10% |
尺量 |
2 |
截面尺寸 |
±20mm |
尺量 |
|
3 |
埋置深度 |
不小于設計值 |
水準儀測 |
1、造價低:不僅產品生產成本低,且由于產品重量輕可大幅減輕高架輕軌、高架路的承重負荷,降低工程造價;
2、承受風荷強:強度高、自重輕,可滿足我國各地區不同氣候條件對風荷載的要求;
3、聲學性能優越:菱鎂聲屏障的平均隔聲量大于35dB,平均吸聲系數大于0.84,滿足各領域對聲屏障的要求;
4、防火性能好:菱鎂膠凝材料屬無機不燃材料,復合的吸音玻璃棉、珍珠巖等材料也具有良好的防火性能,使得產品具有優異的防火性能,屬國家A級不燃材料;
5、使用耐久性好:菱鎂聲屏障耐水、耐火、耐腐蝕、抗紫外線,不受雨、雪、風、沙等惡劣氣候的侵蝕,使用壽命長;
6、安裝簡便:菱鎂聲屏障自重輕,可裝配式施工,效率高、工期短,可節省大量工費;
7、美觀可塑:根據不同需要可采用與金屬材料及透光材料組合的結構形式,也可噴涂各種色彩及圖案,以達到景觀裝飾要求。
8、節能環保:菱鎂聲屏障所用原材料無毒無害,且生產過程無需高溫加熱,無有毒氣體釋放,是國家鼓勵發展的環保型產品;
9、適用范圍廣闊:根據不同需要可加工生產菱鎂隔音板及菱鎂吸音板,適用于公路,輕軌,鐵路,涵洞,隧道等交通領域和各種工業廠房、車間及住宅小區等領域。
前景:隨著中國經濟的高速發展、城市化進程的不斷加快,高速公路、鐵路、城市軌道交通等交通方式得到快速發展,這些道路在建造時難免要穿過人口集中的居住區,所產生的交通噪聲給道路附近居民的工作、生活、學習帶來了一定的干擾。全國環境監測結果表明:道路交通噪聲中約有17%的城市屬于中度污染、49%的城市屬輕度污染,建立聲屏障解決交通噪聲污染成為城市道路噪聲控制的主要方式。菱鎂聲屏障因其獨特優勢得到了快速發展,已廣泛應用于北京、鄭州、廣州和重慶等城市。
公路聲屏障的吸聲材料有哪些聲屏障在公路交通噪聲能量集中的400~800Hz具有良好的吸、隔聲性能,材料具有價格低、自重輕、防水、強度大、美觀耐用、施工快速、維護容易等優點。關于聲屏障的材質有哪些呢?下面就詳細介紹一下。一、公路聲屏障的吸聲材料1、 水…
設置聲屏障的線形與道路構筑物協調問題聲屏障作為一個線性工程,必然要跨越道路已有構筑物——橋梁、通道、路基邊坡等,由于聲屏障在構筑物路段設置的位置不同:橋梁段設置在橋梁外側或頂部;通道上設置頂部;路基上設置在距離路肩邊緣外側1m處,必然會出現聲屏…
聲屏障的規格型號及安裝位置應符合設計要求。各類插板式聲屏障單元板安裝后,左右偏差不得大于2mm,上下板縫前后側差不得大于1mm,相鄰單元吸聲板高程偏差不得大于2mm。單元板之間連接應緊密牢固,不得出現縫隙。聲屏障單元板與膠條及與底梁應連接密實,不得有…
隔音屏障養護應該注意事項隔音屏障在安裝完成后,也要對其進行相應的養護工作。具體方面如下:1.如果是透明型隔音屏障要注意定期對其進行清理,否則長時間不清理,表面灰塵覆蓋屏體,會對透光度有影響。進而影響司機視野,影響透光度等等。2.要有人定期對隔音屏…
眾多客戶見證完美品質
公司秉承以用戶需求為核心,堅持“質量求優、服務一流”的經營理念,在交通行業獲得了客戶的一致認可和高度評價。為客戶提供優質產品是我公司一貫堅持的基本準則,且公司專注于此進行著不懈的努力。我公司在提供優質產品的同時,特別注重為用戶服務,包括技術咨詢、產品選型、指導安裝等,竭誠歡迎各設計院、廠商用戶垂詢惠顧。


源于企業對產品細節的專注
道路聲屏障具有外形美觀大方,制作精致,運輸、安裝方便,造價低,使用壽命長,質量輕、現場安裝方便簡易、無污染,工廠流水線生產質量可控,色彩豐富,可二次回收利用,維護方便等特點。
道路聲屏障可用于高速鐵路、軌道交通、鐵路、城市高架、高速公路、工業降噪等。
為客戶提供全過程的服務體驗
專家級團隊為您解決項目建設所需的整套方案設計和咨詢工作,幫您節約投資和降低能耗;
售后團隊技術精湛,經驗豐富,公司承諾我廠產品保質期內出現任何質量問題由公司免費維修或更換;


產品全部流水線生產
讓客戶,更放心

定制產品生產完成
24內快速發貨

所有產品均可開具13%增
值專用發票

使用產品過程中遇到問題
我廠全程指導
